Rif: IMMO-111314537
CASALE MONFERRATO
ALESSANDRIA
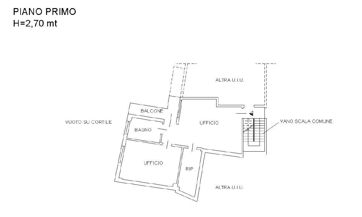
GRUPPO ERRE ESSE IMMOBILIARE Propone in vendita ufficio di 74 mq, con due locali, bagno, ripostiglio e balcone, posto al piano primo di un edificio di tre piani fuori terra degli inizi del secolo.
L'immobile è situato in zona centrale del comune di Casale Monferrato, in contesto tipicamente residenziale/commerciale, caratterizzato da edifici d'epoca e di vecchia costruzione.
Le strutture portanti dell'edificio sono in laterocemento, copertura a falde, con manto in tegole e serramenti esterni in alluminio e legno.
L'immobile è situato in zona centrale del comune di Casale Monferrato, in contesto tipicamente residenziale/commerciale, caratterizzato da edifici d'epoca e di vecchia costruzione.
Le strutture portanti dell'edificio sono in laterocemento, copertura a falde, con manto in tegole e serramenti esterni in alluminio e legno.
Consistenze
| Descrizione | Superficie | Sup. comm. |
|---|---|---|
| Principali | ||
| Ufficio - 1° piano | 74 Mq | 74 Mqc |
| Totale | 74 Mqc | |










