Rif: 11/03 Sanfrè
SANFRE'
CUNEO
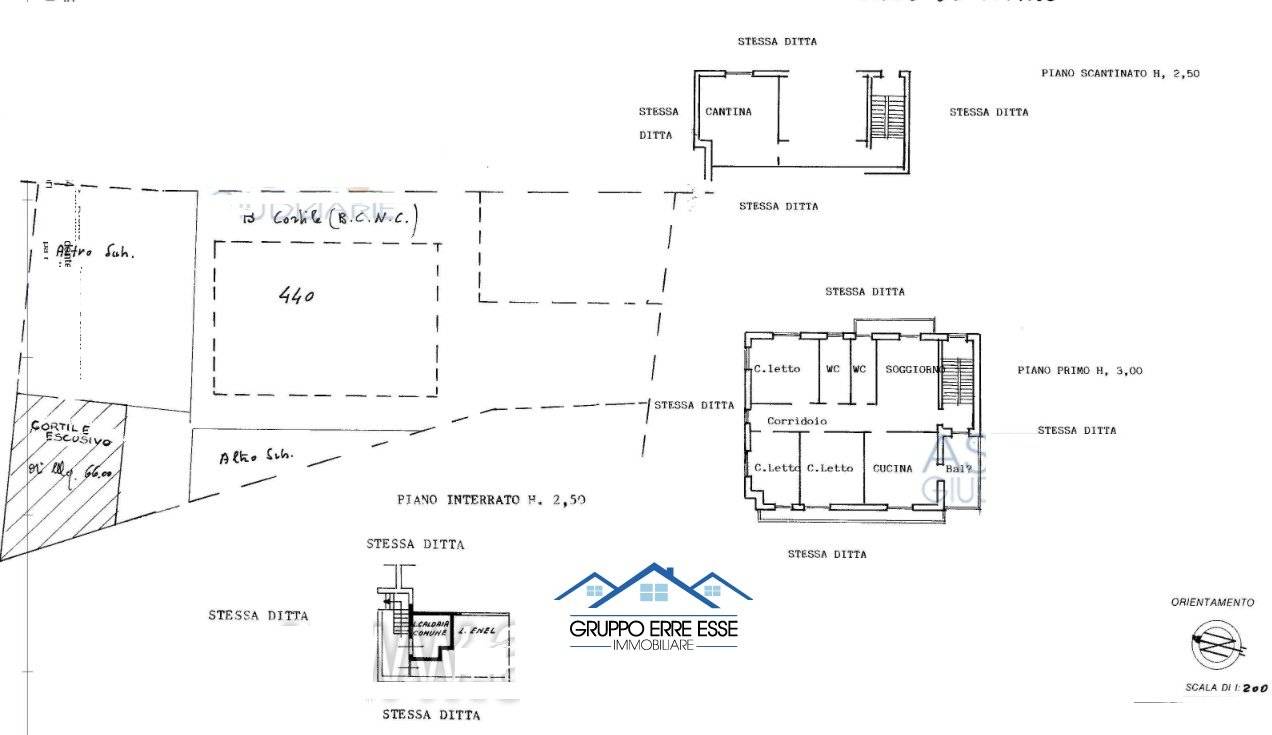
GRUPPO ERRE ESSE IMMOBILIARE Propone all'asta, appartamento di circa 149 mq, escluse aree scoperte, costituito da ingresso/soggiorno, cucina, camere dal letto comunicante con cabina armadio, studio, due bagni e tre balconi.
Libero su quattro lati, posto al piano primo di più ampio fabbricato, non costituito in condominio, elevato a tre piani fuori terra ed uno entro terra, oltre a porzione di cortile/giardino esclusivo al piano terra e cantina pertinenziale al piano seminterrato dotata di impianto elettrico.
Cantina posta al piano seminterrato.
Autorimessa ubicata al piano terreno di circa 23 mq.
Trattasi di immobile venduto tramite asta giudiziaria.
Documentazione e foto presso il nostro studio.
Con la nuova modalità di partecipazione alle aste TELEMATICHE ci occupiamo di affiancare il cliente interessato all'acquisto con un servizio completo ed efficiente che inquadra ogni aspetto: dalla presentazione dell'offerta all'acquisto finale, fino alla consegna delle chiavi.
La figura del presentatore delle aste telematiche è fondamentale ed indispensabile per espletare tutte le funzioni inerenti la preparazione e l'inoltro in maniera corretta e valida dell'offerta, oltre ad assistere il cliente nella gestione delle operazioni da compiere durante lo svolgimento dell'asta.
L'annuncio è finalizzato alla vendita del servizio di consulenza ed assistenza, gratuita in caso di mancata aggiudicazione dell'asta immobiliare.
Trattasi di vendita pubblica alla quale è possibile partecipare personalmente o tramite il nostro avvocato.
Per ricevere informazioni e per prenotare la visita dell'immobile : tel. 0172/752034 gruppoerreesseimmobiliare@gmail.com
Libero su quattro lati, posto al piano primo di più ampio fabbricato, non costituito in condominio, elevato a tre piani fuori terra ed uno entro terra, oltre a porzione di cortile/giardino esclusivo al piano terra e cantina pertinenziale al piano seminterrato dotata di impianto elettrico.
Cantina posta al piano seminterrato.
Autorimessa ubicata al piano terreno di circa 23 mq.
Trattasi di immobile venduto tramite asta giudiziaria.
Documentazione e foto presso il nostro studio.
Con la nuova modalità di partecipazione alle aste TELEMATICHE ci occupiamo di affiancare il cliente interessato all'acquisto con un servizio completo ed efficiente che inquadra ogni aspetto: dalla presentazione dell'offerta all'acquisto finale, fino alla consegna delle chiavi.
La figura del presentatore delle aste telematiche è fondamentale ed indispensabile per espletare tutte le funzioni inerenti la preparazione e l'inoltro in maniera corretta e valida dell'offerta, oltre ad assistere il cliente nella gestione delle operazioni da compiere durante lo svolgimento dell'asta.
L'annuncio è finalizzato alla vendita del servizio di consulenza ed assistenza, gratuita in caso di mancata aggiudicazione dell'asta immobiliare.
Trattasi di vendita pubblica alla quale è possibile partecipare personalmente o tramite il nostro avvocato.
Per ricevere informazioni e per prenotare la visita dell'immobile : tel. 0172/752034 gruppoerreesseimmobiliare@gmail.com
Consistenze
| Descrizione | Superficie | Sup. comm. |
|---|---|---|
| Principali | ||
| Immobile - 1° piano | 149 Mq | 149 Mqc |
| Box/Garage - piano terra | 22 Mq | 11 Mqc |
| Cantina - seminterrato | 20 Mq | 5 Mqc |
| Totale | 165 Mqc | |










